~プレサンス住販がお届けする戸建てブランド「プレサンスアージュ」~
■交通・生活利便性に恵まれた全10区画の新街区。 収納スペース豊富で、生活動線にもこだわった住まい。
■2沿線2駅利用可能で通勤・通学・お出かけに便利
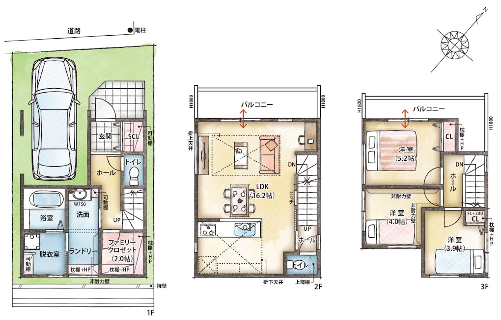
■LDKは15帖超&2面採光以上、一部折上天井仕様
■洋室のCL以外にも、WIC、SCL、ファミリークローゼットなど収納スペース豊富
■プライバシーに配慮された2階LDK仕様
■ご家族の絆を育む、対面式キッチン&リビング階段
■小学校や公園まで徒歩2分、3つのイオンモールも車で10分圏内。
食料品やファッション、グルメ、クリニックなど、毎日の生活が充実する買い物施設が複数点在。
お子様とのお出かけやサイクリングに最適な公園も近く、気軽にリフレッシュ可能。心豊かに過ごせる環境です。
・イオンモール京都五条店まで自転車7分(自動車5~6分)
・京都市立西京極西小学校徒歩2分
・桂橋児童公園徒歩2分
















| 物件名 | プレサンス アージュ 京都西京極 |
|---|---|
| 所在地 | 京都府京都市右京区西京極河原町37番1~5、西京極西向河原町1番~1番5 他(地番) |
| 交通 | 阪急京都線「西京極」駅まで徒歩約13分 JR京都線「西大路」駅まで自転車約7分 |
| 開発面積 | 881.97㎡ |
| 区画数 | 10区画 |
| 地目 | 宅地 |
| 土地の権利状態 | 所有権 |
| 用途地域 | 準工業地域 |
| 地区・街区 | 市街化区域、準防火地域、31m第10種高度地区、宅地造成等工事規制区域、岸辺型建造物修景地区、近景デザイン保全地域(17-1)、遠景デザイン保全地域(4)(11)(49)、事前協議区域(17-1)、屋外広告物第3種地域 |
| その他法令上の制限 | 景観法、近畿圏の近郊整備区域及び都市開発区域の整備及び開発に関する法律、都市再生特別措置法、宅地造成及び特定盛土等規制法 |
| 建ぺい率 | 70%・80% |
| 容積率 | 300% |
| 道路幅員 | 南西側公道約6.4m、開発道路約6.0m |
| 私道負担 | あり(開発道路187.8㎡:持分1/9) |
| 開発許可番号 | 第5034号(令和5年8月9日)、変第2163号(令和6年5月20日)、変第2175号(令和6年11月22日) |
| 造成工事完了予定時期 | 2025年1月上旬完了済 |
| 設備 | 電気、都市ガス、公営水道、公共下水道 |
| 取引形態 | 媒介 |
| 事業主(売主) | 株式会社 プレサンス住販 国土交通大臣(3)第8061号 (公社)全日本不動産協会会員 (公社)近畿地区不動産公正取引協議会加盟 〒540-6028 大阪市中央区城見1丁目2番27号 クリスタルタワー28階 |
| 販売提携(媒介) | 株式会社プレサンスホームデザイン 国土交通大臣(1)第10501号 (公社)全日本不動産協会会員 (公社)近畿地区不動産公正取引協議会加盟 〒540-6316 大阪市中央区城見1-3-7 松下IMPビル16階 |
| 販売戸数 | 1戸 |
|---|---|
| 土地面積 | 58.93㎡(有効敷地面積) |
| 建物面積 | 92.67㎡(消費税・外構費込 内車庫10.80㎡) |
| 間取り | 3LDK |
| 販売価格 | 3,690万円(消費税・外構費込) |
| 建築確認番号 | 第技建認2025-00046号 |
| 構造 | 木造軸組3階建て |
| 建物の完成 | 竣工済(2025年7月中旬) |
| 引渡時期 | 即入居可 ※諸手続き後のお引渡しとなります。 |
| 取引条件有効期限 | 2025年11月7日 |
| 販売戸数 | 1戸 |
|---|---|
| 土地面積 | 53.56㎡(有効敷地面積) |
| 建物面積 | 98.81㎡(消費税・外構費込 内車庫14.04㎡) |
| 間取り | 2LDK+S |
| 販売価格 | 3,990万円 |
| 建築確認番号 | 第技建認2025-00088号 |
| 構造 | 木造軸組3階建て |
| 建物の完成 | 竣工済(2025年9月中旬) |
| 引渡時期 | 即入居可 ※諸手続き後のお引渡しとなります。 |
| 取引条件有効期限 | 2025年11月7日 |
情報更新日: 2025年10月31日
次回更新日: 2025年11月7日