~プレサンス住販がお届けする戸建てブランド「プレサンスアージュ」~
【交通】
・「学園前」駅から「大阪難波」駅へ直通アクセス可能です。
【プラン】
・全10区画のアージュの新街区が誕生!
・開発道路は広々6.0mかつ通り抜けができない設計のため、プライバシーを守りやすいです。
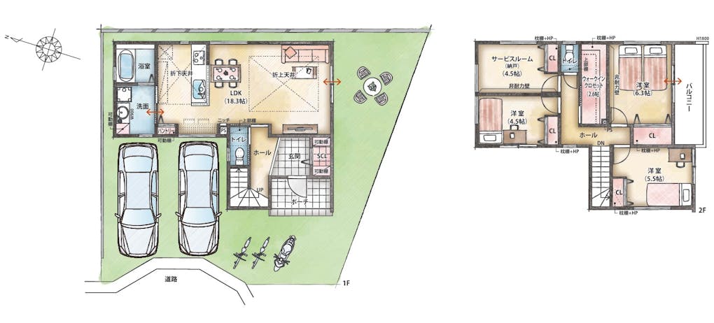
・南面ワイドなLDK×豊富な収納スペースが魅力の4LDK(5号地)
・ZEH住宅※5号地以外 、制震ダンパー「MIRAIE」、Panasonicの宅配ボックス・乾太くんを標準採用!
【周辺環境】
暮らしの動線がコンパクトなため、快適な日々を享受することができます。
広大な敷地を有する大型公園が身近に。のびのびと子育てをしやすい環境が整っています。
・万代 学園前店 徒歩7分
・コープ 学園前/スギ薬局 学園前店 徒歩9分
・パラディ学園前 自転車5分
・おがわ小児科診療所 徒歩9分




























| 物件名 | プレサンス アージュ 南登美ヶ丘EAST |
|---|---|
| 所在地 | 奈良市南登美ヶ丘3351番9 他(地番) |
| 交通 | 近鉄奈良線「学園前」駅まで徒歩約19分(自転車5~6分) |
| 開発面積 | 1684.87㎡ |
| 区画数 | 10区画 |
| 地目 | 宅地 |
| 土地の権利状態 | 所有権 |
| 用途地域 | 第一種住居地域 |
| 地区・街区 | 市街化区域、法第22条区域、15m高度地区、宅地造成等工事規制区域、西北部住宅地景観区、都市計画事業地内(一条、富雄線) |
| その他法令上の制限 | 景観法、都市再生特別措置法、宅地造成及び特定盛土等規制法 |
| 建ぺい率 | 60% |
| 容積率 | 200% |
| 道路幅員 | 開発道路約6.0m、北側公道約4.0m |
| 私道負担 | なし |
| 開発許可番号 | 奈良市指令整開第23A-40号、奈良市指令整開第23A-40-1号 |
| 造成工事完了予定時期 | 2024年9月下旬完了済 |
| 設備 | 電気、大阪ガス、公営水道、公共下水道 |
| 取引形態 | 媒介 |
| 事業主(売主) | 株式会社 プレサンス住販 国土交通大臣(3)第8061号 (公社)全日本不動産協会会員 (公社)近畿地区不動産公正取引協議会加盟 〒540-6028 大阪市中央区城見1丁目2番27号 クリスタルタワー28階 |
| 販売提携(媒介) | 株式会社プレサンスホームデザイン 国土交通大臣(1)第10501号 (公社)全日本不動産協会会員 (公社)近畿地区不動産公正取引協議会加盟 〒540-6316 大阪市中央区城見1-3-7 松下IMPビル16階 |
| 販売戸数 | 1戸 |
|---|---|
| 土地面積 | 130.58㎡ |
| 建物面積 | 99.62㎡ |
| 間取り | 4LDK |
| 販売価格 | 4,290万円(消費税・外構費込) |
| 建築確認番号 | 第25確認建築財なら0194号 |
| 構造 | 木造軸組2階建て |
| 建物の完成 | 竣工済(2025年9月下旬) |
| 引渡時期 | 2026年1月下旬 |
| 取引条件有効期限 | 2025年11月6日 |
| 販売戸数 | 1戸 |
|---|---|
| 土地面積 | 132.22㎡ |
| 建物面積 | 99.42㎡ |
| 間取り | 3LDK+S(納戸) |
| 販売価格 | 4,490万円(消費税・外構費込) |
| 建築確認番号 | 第25確認建築財なら0708号 |
| 構造 | 木造軸組2階建て |
| 建物の完成 | 2026年2月中旬予定 |
| 引渡時期 | 2026年3月中旬予定 |
| 取引条件有効期限 | 2025年11月6日 |
情報更新日: 2025年10月30日
次回更新日: 2025年11月6日