~プレサンス住販がお届けする戸建てブランド「プレサンスアージュ」~
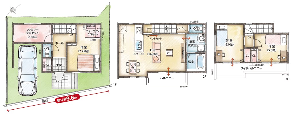
■間口は、広々約9.6m。
■バルコニー付きのLDKは約16帖で、団らん時間をゆったりと寛げます。
■ご家族との会話が弾む対面式キッチン。
■約4帖の大型FCLやWIC、SCLなど収納が充実。
■2階に水廻りとバルコニーをまとめ、洗濯物を干すのもスムーズです。
■バルコニーは南東向き。2か所あるので、用途別に使い分けできて便利です。
■1台駐車可(車種による)。マイカーライフを楽しめます。
■制震ダンパー「ミライエ」を標準装備。
■周辺環境
・枚方市立平野小学校:徒歩7分(現地より約490m)
・スーパーサンコー牧野店:徒歩3分(現地より約240m)
・車塚公園:徒歩8分(現地より約640m)














| 物件名 | プレサンス アージュ 枚方牧野本町Ⅲ |
|---|---|
| 所在地 | 大阪府枚方市牧野本町二丁目123番35 他(地番) |
| 交通 | 京阪本線「牧野」駅まで徒歩17分(自転車5分) |
| 総面積 | 71.16㎡(登記簿面積) |
| 区画数 | 1区画 |
| 地目 | 宅地 |
| 土地の権利状態 | 所有権 |
| 用途地域 | 第一種中高層住居専用地域 |
| 地区・街区 | 市街化区域、準防火地域、第2種高度地区、枚方市開発事業等の手続等に関する条例、宅地造成等工事規制区域、埋蔵文化財包蔵地(九頭神廃寺)、居住誘導区域 |
| その他法令上の制限 | 景観法、宅地造成及び特定盛土等規制法、文化財保護法、都市再生特別措置法 |
| 建ぺい率 | 70% |
| 容積率 | 160% |
| 道路幅員 | 東側私道約4.0m |
| 私道負担 | あり(39㎡(持分2分の1、地番123-36)) |
| 設備 | 都市ガス、電気、公営水道、公共下水道 |
| 取引形態 | 媒介 |
| 事業主(売主) | 株式会社 プレサンス住販 国土交通大臣(4)第8061号 (公社)全日本不動産協会会員 (公社)近畿地区不動産公正取引協議会加盟 〒540-6028 大阪市中央区城見1丁目2番27号 クリスタルタワー28階 |
| 販売提携(媒介) | 株式会社プレサンスホームデザイン 国土交通大臣(1)第10501号 (公社)全日本不動産協会会員 (公社)近畿地区不動産公正取引協議会加盟 〒540-6316 大阪市中央区城見1-3-7 松下IMPビル16階 |
| 販売戸数 | 1戸 |
|---|---|
| 土地面積 | 71.14㎡(有効敷地面積) |
| 建物面積 | 98.67㎡(内車庫面積8.77㎡含む) |
| 間取り | 3LDK |
| 販売価格 | 3,290万円(消費税・外構費込) |
| 建築確認番号 | 第OKBC25C01-01809号 |
| 構造 | 木造軸組3階建て |
| 建物の完成 | 2026年1月下旬予定 |
| 引渡時期 | 2026年2月下旬予定 |
| 取引条件有効期限 | 2025年12月3日 |
情報更新日: 2025年11月26日
次回更新日: 2025年12月3日