~プレサンス住販がお届けする戸建てブランド「プレサンスアージュ」~
■交通利便良好
・京阪本線 区間急行停車駅「大和田」駅まで徒歩6~7分
・「大和田」駅から「京橋」駅まで直通13分、「淀屋橋」駅まで直通20分
■駐車2台可能な区画をご用意(車種による)
■南向きバルコニー付きの区画あり ※一部区画除く
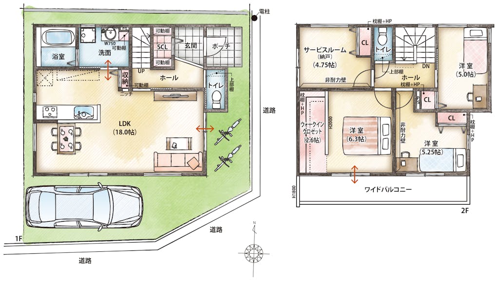
■LDKは2面採光以上&15帖超の開放感ある空間
■ウォークインクロゼットやファミリークロゼット、ホール収納など、豊富な収納スペース付き
■水廻りを集約したプランやランドリールームのあるプランなど、家事が捗る住まい
■買い物施設も充実
・ダイエー大和田店 徒歩4~5分
・そよら古川橋駅前 徒歩12分
・ららぽーと門真 自転車7~8分
・イオンモール大日 自転車8分
■子育て世代にもおすすめ
・認定こども園古川園 徒歩3~4分
・弥治右衛門碑前公園 徒歩7~8分












| 物件名 | プレサンス アージュ 門真常盤町 |
|---|---|
| 所在地 | 大阪府門真市常盤町73番5 他(地番) |
| 交通 | 京阪本線「大和田」駅まで徒歩6~7分 京阪本線「古川橋」駅まで徒歩11分 |
| 総面積 | 417.73㎡(登記簿面積) |
| 区画数 | 5区画 |
| 地目 | 宅地 |
| 土地の権利状態 | 所有権 |
| 用途地域 | 第二種中高層住居専用地域・第二種住居地域 |
| 地区・街区 | 市街化区域、準防火地域、宅地造成等工事規制区域、埋蔵文化財包蔵地(横地遺跡)、居住誘導区域、大和田駅周辺都市機能誘導区域 |
| その他法令上の制限 | 景観法、宅地造成及び特定盛土等規制法、特定都市河川浸水被害対策法、文化財保護法、都市再生特別措置法、門真市まちづくり基本条例 |
| 建ぺい率 | 60%・70% |
| 容積率 | 160% |
| 道路幅員 | 私道約4.0m(法第43条第2項第2号許可による)、南側公道約4.0m |
| 私道負担 | なし |
| 設備 | 都市ガス、電気、公営水道、公共下水道 |
| 取引形態 | 媒介 |
| 事業主(売主) | 株式会社 プレサンス住販 国土交通大臣(4)第8061号 (公社)全日本不動産協会会員 (公社)近畿地区不動産公正取引協議会加盟 〒540-6028 大阪市中央区城見1丁目2番27号 クリスタルタワー28階 |
| 販売提携(媒介) | 株式会社プレサンスホームデザイン 国土交通大臣(1)第10501号 (公社)全日本不動産協会会員 (公社)近畿地区不動産公正取引協議会加盟 〒540-6316 大阪市中央区城見1-3-7 松下IMPビル16階 |
| 販売戸数 | 2戸 |
|---|---|
| 土地面積 | 85.69㎡・89.30㎡(有効敷地面積) |
| 建物面積 | 95.17㎡~95.58㎡ |
| 間取り | 2LDK+2S(納戸)・3LDK+S |
| 販売価格 | 3,980万円・4,080万円(消費税・外構費込) |
| 建築確認番号 | 第トラスト25-0523号 他 |
| 構造 | 木造軸組2階建て |
| 建物の完成 | 2026年1月下旬予定 |
| 引渡時期 | 2026年3月中旬予定 |
| 取引条件有効期限 | 2025年12月3日 |
情報更新日: 2025年11月26日
次回更新日: 2025年12月3日