~プレサンス住販がお届けする戸建てブランド「プレサンスアージュ」~
・JR学研都市線・おおさか東線「放出」駅まで徒歩11分。(快速停車駅)
3線4駅利用可能で、市内へのアクセスも良好です。
・南向きバルコニー付き。
・ZEH水準省エネ住宅(断熱等性能等級5・一次エネルギー消費量等級6)
・制震ダンパー「MIRAIE」標準装備
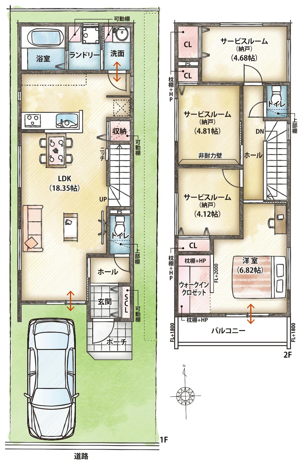
・LDKは広々19帖超!ご家族の会話が弾む対面式キッチン・リビング階段を採用。
・1階に水回りを集約し、家事・生活動線良好です。
・3ヶ所のサービスルーム(納戸)は4帖超の広さで窓設置あり。多用途に活用できます。
・1台分の駐車スペースあり(車種による)。
・前面道路幅員は約8.0mとゆとりがあり、駐車時も安心です。
・教育施設や公園・スーパーや病院が徒歩13分圏内にあり、幅広い世帯に嬉しい住環境です。











| 物件名 | プレサンス アージュ 森河内西Ⅰ |
|---|---|
| 所在地 | 大阪府東大阪市森河内西一丁目15番5 他(地番) |
| 交通 | JR学研都市線・おおさか東線「放出」駅まで徒歩11分 JRおおさか東線「高井田中央」駅まで徒歩13分 OsakaMetro中央線「高井田」駅まで徒歩13分 OsakaMetro中央線「深江橋」駅まで徒歩14分 |
| 総面積 | 201.07㎡(登記簿面積) |
| 区画数 | 2区画 |
| 地目 | 宅地 |
| 土地の権利状態 | 所有権 |
| 用途地域 | 第1種住居地域 |
| 地区・街区 | 市街化区域、準防火地域、居住誘導区域、宅地造成等工事規制区域 |
| その他法令上の制限 | 景観法、宅地造成及び特定盛土等規制法、特定都市河川浸水被害対策法、津波防災地域づくりに関する法律、都市再生特別措置法 |
| 建ぺい率 | 60% |
| 容積率 | 200% |
| 道路幅員 | 南側公道約8.0m |
| 私道負担 | あり(1号地/約8.59㎡) |
| 設備 | 関西電力、大阪ガス、公営水道、公共下水道 |
| 取引形態 | 媒介 |
| 事業主(売主) | 株式会社 プレサンス住販 国土交通大臣(4)第8061号 (公社)全日本不動産協会会員 (公社)近畿地区不動産公正取引協議会加盟 〒540-6028 大阪市中央区城見1丁目2番27号 クリスタルタワー28階 |
| 販売提携(媒介) | 株式会社プレサンスホームデザイン 国土交通大臣(1)第10501号 (公社)全日本不動産協会会員 (公社)近畿地区不動産公正取引協議会加盟 〒540-6316 大阪市中央区城見1-3-7 松下IMPビル16階 |
| 販売戸数 | 1戸 |
|---|---|
| 土地面積 | 86.18㎡(有効敷地面積) |
| 建物面積 | 97.94㎡(うち車庫4.39㎡) |
| 間取り | 1LDK+3S(納戸) |
| 販売価格 | 4,890万円(消費税・外構費込) |
| 建築確認番号 | 第ONEX確建東大2520383号 |
| 構造 | 木造軸組2階建て |
| 建物の完成 | 2026年1月中旬予定 |
| 引渡時期 | 2026年2月下旬予定 |
| 取引条件有効期限 | 2026年2月11日 |
情報更新日: 2026年2月4日
次回更新日: 2026年2月11日